福井県小浜市移住定住情報サイト おばまに暮らそ

幸福度日本一福井県 小浜市に住んでみませんか!

  • 小浜市 移住定住交流課
  • 0770-64-6073
  • iju@city.obama.lg.jp

No160 池河内

所在地 小浜市池河内32号30番地1、31番、33番1
価格 売却物件300万円 物件タイプ 土地および建物
構造 木造2階建
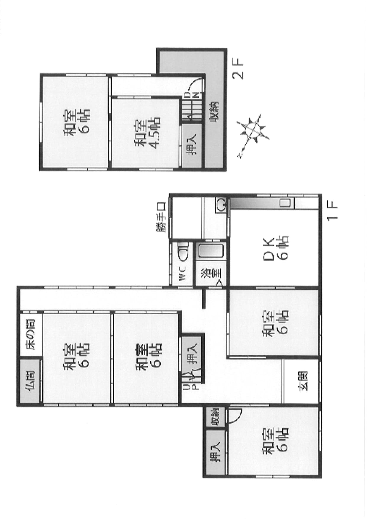
間取り 6DK(1階:和4、DK 2階:和2)
土地面積 509.91㎡ 建物面積 1階:91.16㎡ 2階:39.58㎡
交通 JR小浜駅 車約15分
築年数 昭和51年 地目 宅地
建ぺい率 容積率
用途地域 都市計画区域外
土地権利 取引態様 媒介
備考 ※民泊目的の方はご遠慮お願いします。

ーーーーーーーーー
【設備】
水道、電気、洋式水洗トイレあり
風呂あり
台所あり
農業集落排水
ーーーーーーーーー
【備考】
・2018年リフォーム済み(風呂、玄関床、屋根瓦、給湯器など)
・土砂災害警戒区域内
・土地建物現況渡し(敷地内の離れ、トイレ(使用不可)含む)
・農地(畑)付(農地転用許可後引渡し)
ーーーーーーーーー
【お問い合わせ】
〒917-0073
福井県小浜市四谷町9-18
株式会社平田不動産
℡:0770-53-3588
FAX:0770-53-2434

ページトップへ

© 2015 おばまで暮らそ.